Moderne arkitekttegnede boliger | Dobbelgarasje | Familievennlig område
Venåsen 10, 5232 Paradis

Nøkkelinfo
- Boligtype: Bolig
- Eierform: Eierseksjon, 10 A og 10 B
- Byggeår: 2025/26
- Antall rom: 6
- BRA: 241,5 m² (10 A), 239,6 m² (10 B)
- TBA: Ca. 49 m² terrasse for hver bolig
- Tomt: Totalt 1608,9 m², med eksklusivt uteareal for hver enhet og felles gårdsplass
Prosjektbeskrivelse
Urbanhus presenterer to nøkkelferdige boliger på solrike Venåsen. Flytt inn i en splitter ny bolig med valgmuligheter for personlig preg! Boligene har store, vestvendte takterrasser og gjennomtenkte løsninger med utsikt mot grøntområder. Her får du både praktiske uteområder og en gjennomgående høy standard.

Beliggenhet
Rolig og barnevennlig i blindvei, med kort vei til skoler, barnehager, butikk, bybane og et utvalg spisesteder. Nyt nærhet til både natur- og kulturperler som Troldhaugen, samt flotte sykkel- og gangstier. Få minutter med bil til Bergen sentrum, Lagunen Storsenter, og mer.



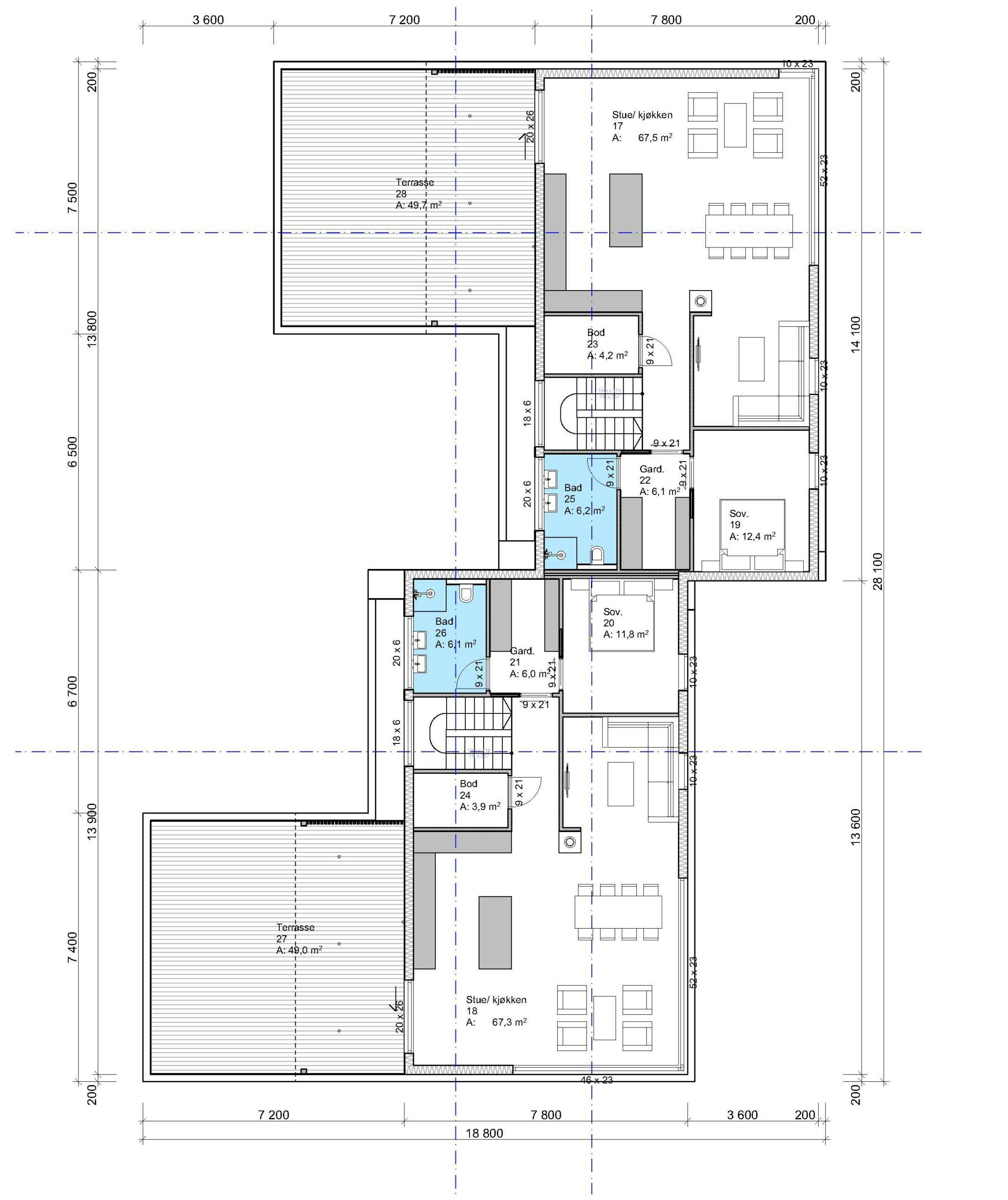
Planløsning
1. etasje:
- Integrert garasje (44 m²)
- Overbygget inngangsparti, hall og vaskerom
- 3 soverom, stort bad, og ekstra stue med utgang til hage

2. etasje:
- Åpen stue- og kjøkkenløsning (67 m²) med takhøyde på 2,7 m og store vinduer til tak
- Vestvendt takterrasse, delvis overbygget
- Hovedsoverom med walk-in garderobe og eget bad

Standard
Gjennomført med alukledde vinduer, enstavs eikeparkett, 60×60 fliser på bad, kjøkken fra Aubo, moderne peis og oppgradert belysning.
Interessert?
Ta kontakt for mer informasjon:
Maren H. Olsen, daglig leder Urbanhus Bergen
Tlf: 936 15 700 / maren@urbanhus.no